Porzione di bifamiliare in vendita

Cassino, Via Colle Romano - Sant'Angelo In Theodice
€ 189.000
4 locali 4 locali
318 Mq 318 Mq
3 bagni 3 bagni

Porzione di bifamiliare in vendita

Cassino, Via Colle Romano - Sant'Angelo In Theodice

Descrizione annuncio

Cassino, via Colle Romano, proproniamo in vendita una porzione di villa bifamilare in buono stato, della superficie catastale di mq. 318 Con terreno e giardino di pertinenza della superfice complessiva tra coperto e scoperto di mq. 1400 circa. Immerso nel verde, nell'immediata periferia della città, l'immobile si sviluppa su tre livelli.

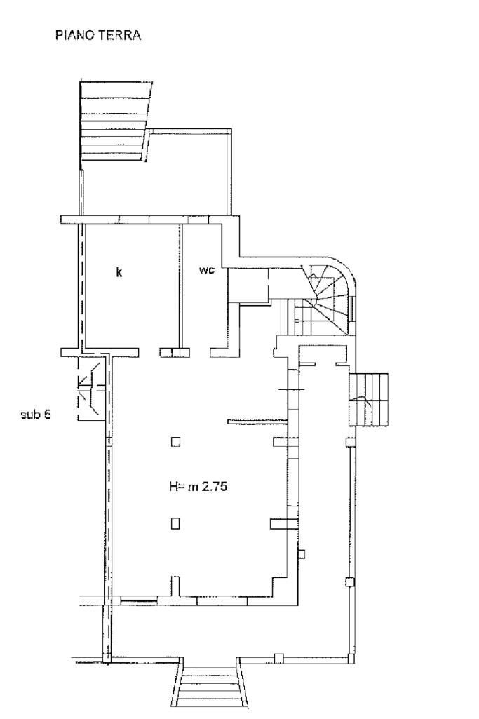
Piano terra: ingresso ampia zona giorno, con salone che permette l'accesso diretto sul porticato, cucina abitabile e bagno finestrato.

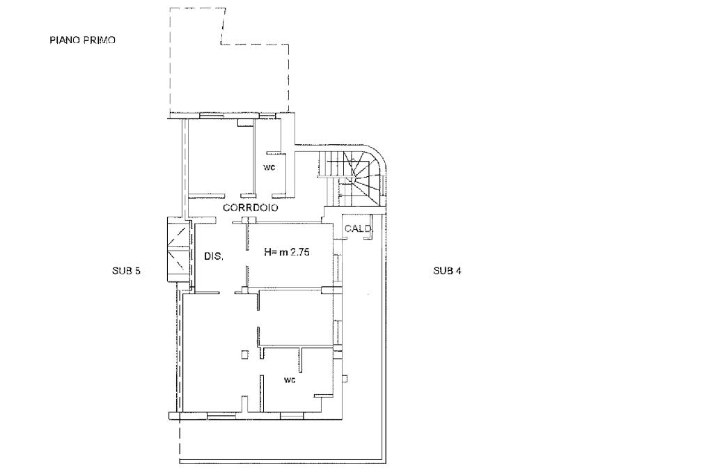
Piano primo: camera padronale, ampia cabina armadio, bagno in camera dotato dotato di box doccia e vasca idro; due camere da letto, bagno e balcone di circa 25 mq.

piano secondo: quattro vani sofffitta con un altezza media di metri 2.

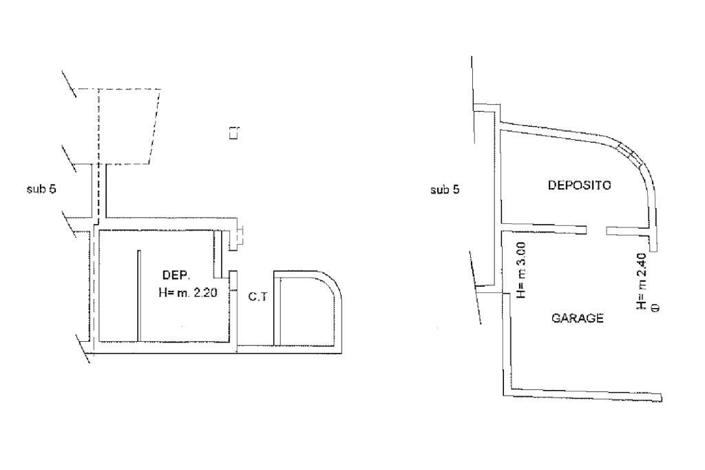
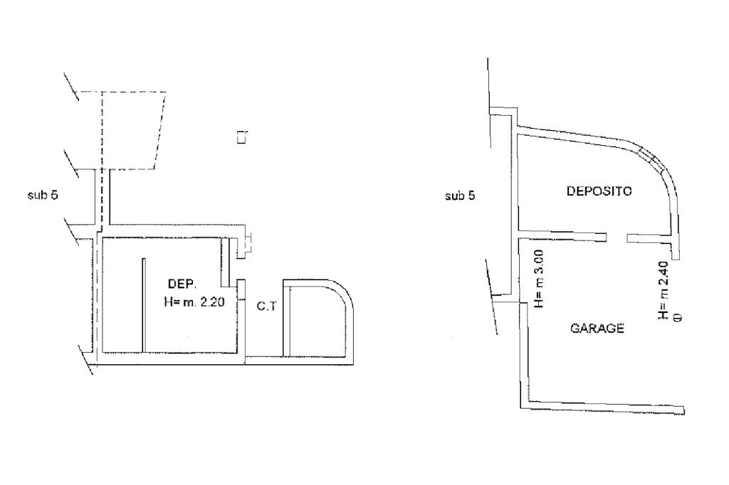
l'immobile è dotato di due vani cantina uso deposito e un garage di circa 25 mq.

La posizione panoramica e dominante con l'esposizione verso sud-est rende l'immobile soleggiato e panoramico.

Ad una distanza di circa quattro km dal centro di Cassino e circa tre km dal casello autostradale.

Mostra tutto

Nelle vicinanze

Scuole Scuole
Scuola Primaria
760 m
Scuole
760 m
Liceo Scientifico "G. Pellecchia"
2,1 Km
ITIS "E. Majorana"
2,3 Km
ITCG "Europa" - IPSAAR
2,4 Km
Farmacia Farmacia
Farmacia
730 m
Supermercati Supermercati
Gari Blu
710 m
Supermercati DUEA
970 m
Bar Bar
Taverne du Quartier Latin
870 m
Bar
2,2 Km
Ristoranti Ristoranti
La Sosta
2,4 Km
Ristorante Al Boschetto
2,7 Km
Colle de Siena
2,8 Km
Mostra tutto

Caratteristiche

Rif.:
61137834
Piano:
3 di 3 (Piano su più livelli)
Box:
1
Posti auto:
3
Balconi:
2
Terrazzi:
1
Mostra tutto
Prezzo Prezzo
€ 189.000
Rata mutuo Rata mutuo
€ 898 / mese
Spese annue Spese annue
€ 100
Proponi il tuo prezzoProponi il tuo prezzo

Classe Energetica

G
G
G
G
G
G
G
G
G
EP invernale del fabbricato:
EP estiva del fabbricato:
Anno di costruzione:
1985
Riscaldamento:
Autonomo
Tipo impianto:
A radiatori
Tipo alimentazione:
GPL

Ti interessa visionare l'immobile?

Fissa un appuntamento  Fissa un appuntamento

Richiedi informazioni

Clicca su Leggi per aprire l'informativa
* Questi campi sono obbligatori

Calcola il tuo mutuo

Semplice e senza impegno
Anticipo

( % )
Mutuo

( % )

pochi semplici passi

inserisci i tuoi dati
Questionario completato
Grazie per aver richiesto un appuntamento senza impegno con un nostro Consulente del Credito e Assicurativo.

Hai inserito correttamente tutti i dati necessari e a breve riceverai una e-mail con un link da convalidare per inviare i tuoi dati.
Affiliato
Studio Bonomi Srl
Viale Bonomi, 28/30 03043 Cassino (FR)

Il nostro staff


  • Roberto Valente
    Affiliato

  • Andrea Valente
    Collaboratore

  • Federica De Bellis
    Collaboratrice

  • Laura Quagliozzi
    Coordinatrice

  • Davide Pio Valente
    Collaboratore
Viale Bonomi, 28/30 03043 Cassino (FR)
Zona: Cassino - Via Bonomi
Mostra su mappa
Orari: dal lunedì al venerdì 09:00 - 13:00 - 15:30 - 19:30; sabato 09:00-13:00; sabato pomeriggio su appuntamento. Orario estivo 09:00 - 13:00 16:00 - 20:00
Affiliato
Studio Bonomi Srl
Viale Bonomi, 28/30 03043 Cassino (FR)

2026 Tecnocasa Franchising S.p.A. - P. IVA 08365160152 - Via Monte Bianco 60/A 20089 Rozzano (MI). Ogni agenzia ha un proprio titolare ed è autonoma. Privacy policy | Policy utilizzo | Cookie policy